andromeda.imot.bg Обяви За нас Контакти
Дава под Наем СКЛАД
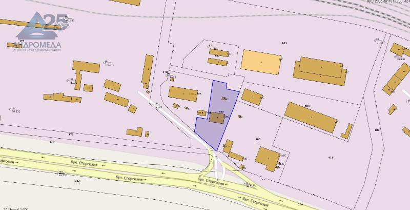
град Плевен, Индустриална зона
ул.Сторгозия
1 022.58 €
2 000 лв.

(4.04 €, 7.91 лв./m2)
Коригирана в 14:11 на 2 декември, 2025 год.
Обявата е посетена 2327 пъти.
Площ:
253 m2
Етаж:
Партер от 1

Описание на имота:


Склад (производствено помещение) с РЗП 235 кв.м., находящо се в гр. Плевен, западна индустриална зона - посока изхода за гр.София, база Лукойл, отлична локация с лесен достъп от пътя (с възможност от две страни), изградено от собственика върху собствен поземлен имот с площ от 2573 кв.м., който е включен в цената. Имота е с височина над 6 метра, под - бетон, възможност за монтиране на стилажи или техника, захранване от около 50 KW с възможност за увеличение. Конструкцията е нова, отговаряща на най - новите стандарти за имоти от този тип. Прилежащия терен ще бъде ограден и с лесна възможност за охрана. За повече информация и оферта на посочените координати. Посочената цена е без ДДС !!! Оферта - ЕА 3415. Warehouse (production premises) with an area of 235 sq.m., located in the town of Pleven, western industrial zone - direction exit for the city of Sofia, Lukoil base, excellent location with easy access from the road (with possibility of two sides), built by the owner on his own landed property of 2573 sq.m., which is included in the price.
Особености
С паркомясто
СОТ
Интернет връзка
Саниран
Охрана
За контакт:
0888 09 99 31
Брокер:
Ангел Иванов
0888099931
Офис: гр.Плевен, ул.Ал.Стамболийски 4
Още оферти от брокера: Продава | Дава под наем | Купува | Наема
Агенция:
АНДРОМЕДА ООД
064/801929, 0888099931
АНДРОМЕДА ООД logo
Медал за прослужено време
В imot.bg от 2003 г.
andromeda.imot.bg
Адрес:
област Плевен, гр. Плевен, ул.Ал.Стамболийски 4 и ул.Бъкстон 5, София - Младост 1А
http://www.andromeda.bg
ИЗПРАТИ ЗАПИТВАНЕ
ИЗПРАТИ ЗАПИТВАНЕТО

Дава под Наем СКЛАД
град Плевен, Индустриална зона
ул.Сторгозия
Обява: 2o157996085595334

1 022.58 €
2 000 лв.
(4.04 €, 7.91 лв./m2)

ЗАПАЗИ ОБЯВАТА

Местоположение: град Плевен, Индустриална зона, ул.Сторгозия

Допълнителни данни за имотите в района и сравнение с други райони

Покажи

Период

* Средните цени са определени чрез медианна стойност